
Developers in Bend are scaling back the vision for a massive urban neighborhood planned near the Old Mill District and the Box Factory, opting for shorter buildings and reduced density while slashing commercial and office space.
Proposed changes would shrink the development, called “Timber Yards,” from 1,600 apartment units to between 1,000 and 1,350, distributed mostly among four-story garden style walk-up apartments instead of six-story podium style buildings. The new plans include about one-third of the office and commercial square footage from the original concept, and give the option to eliminate the
The plans no longer include 250 affordable housing units for seniors, although developers said they hope to provide about 76 income-restricted units in the first phases of construction.
The proposed changes still need approval from the Bend City Council.
Southern California-based real estate developer Kennedy Wilson told the city of Bend in a Dec. 11 letter that rising costs, interest rates and uncertainty about the market for the larger building types made plans unfeasible. But David Eadie, senior vice president of entitlement and development with Kennedy Wilson, assured the city that plans to build a pedestrian-oriented neighborhood — along with infrastructure like streets, roundabouts and utilities — hasn’t changed.

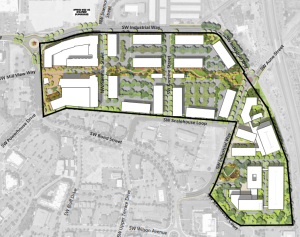
A concept shows how buildings would be arranged under proposed changes to the Timber Yards master plan. The new Jackstraw development is pictured in grey in the upper left corner of the rendering. (Kennedy Wilson)
The new plan should make it easier to break ground sooner, the letter said.
“We recognize that the original vision for Timber Yards created excitement about a new urban paradigm for this area,” Eadie wrote. “That excitement was warranted and shared by our team. However, we would respectfully suggest that Bend’s most pressing need is not the specific architectural form of new development, but rather the acute shortage of housing across all sectors and price points.”
‘Exhausted all avenues’
Kennedy Wilson submitted its first master plan — a conceptual outline of developments required for properties larger than 20 acres — to the city in 2023. Developers took advantage of two year-long permit extensions offered by the city in 2024 and 2025 meant to accommodate a challenging development climate across the city.
The huge gravel lot between downtown and the Old Mill District has been vacant since 2017, when the building that formerly housed the KorPine particle board plant — one of the last remaining signs of Bend’s wood products industrial age — was demolished after heavy snow collapsed the roof. Hooker Creek, a construction materials company, is still operating on ten acres next to the Bend Parkway that could also be developed in later phases of the plan.
The site is a key piece for Bend’s future growth, both because of its potential to add significant amounts of housing near the center of town and the transportation connections it would provide.
In 2020 the property was drawn into a new urban renewal district, which collects property taxes on new development for reinvestment in a specific area. In this “Core Area,” the the city hopes to incentivize upward growth with tall, dense housing, new businesses and multi-modal streets.
But the vision — and the tax base — has been slow to take off, facing economic headwinds like increased costs and interest rates. Kennedy Wilson scrapped permit-ready plans for Timber Yards just as the company was queuing up construction fencing and readying employees to move to Bend.
“The notion of proceeding with an infeasible plan would only have resulted in further delay, or worse, a suspended project,” Eadie said in the letter. “As distasteful and costly as it was to do this, proceeding forward and ignoring these telling metrics would have served no one.”
Seeing the development move ahead is promising, even if it’s not at the density originally planned, said Corie Harlan, cities and towns program director Central Oregon LandWatch, an environmental and land use policy nonprofit. Harlan is also the chair of the policy advisory board for the city’s core urban renewal area.
“Certainly, we would like to see something closer to the original vision,” Harlan said. “We also understand that there are really significant market forces at play that are stalling out any kind of development activity.”
The new plans could be a welcome site for nearby residents worried about increased traffic and competition for parking spaces. That’s a top concern for people in the Old Bend area, said John Fischer, a civil engineer who chairs the neighborhood board and serves on the urban renewal advisory group.
But for a city straining to accommodate growth, the proposed changes are “a step in the wrong direction,” Fischer said. The shift to four-story walk-up apartments means developers will likely build surface parking lots next to the buildings, instead of within them, leaving less space for plazas and green open areas.
Cutback to commercial space
Timber Yards hasn’t totally eliminated six-story podium buildings, however. Developers indicated they still plan to build a six-story structure with 250 housing units layered on top of a parking garage and ground floor retail space in the northwest corner of the site, near the intersection of Industrial Way and Bond Street. That’s across the street from the city’s largest new mixed-use development, the Jackstraw apartment complex, a pair of 313-unit, seven story buildings near the Box Factory where construction was completed in October.
With 16,000 square feet of commercial space, the building’s retail component would be similar to the Jackstraw. That leaves a remaining 10,000 square feet to to accompany up to 1,100 more housing units across the rest of the site. The original plans included 70,000 square feet of commercial space.
“While I’m glad to see forward movement on the development, I’m concerned that the loss of so much commercial space in the overall plan does not align with the city’s goal for a walkable neighborhood with a mix of employment and housing,” City Councilor Gina Franzosa, a liaison to the urban renewal area, said in a text message.
Other large master-planned communities in Bend have seen cutbacks to commercial space plans in recent months, an issue that roiled neighbors and prompted an upcoming city council work session to look at what can be done.
Relying on tax incentives
The Bend City Council gave Timber Yards a boost in 2024 with an $8.4 million property tax exemption through a program meant to incentivize multifamily housing construction.
The exemption only applies to the six-story building, which would continue to qualify long as it includes promised public benefits like the parking garage, open space and enhanced landscaping, said Jonathan Taylor, urban renewal manager with the city of Bend. Land use-approval for the building expires in 2028.
Following public pushback, the city council paused that tax exemption program and replaced it with a rebate program requiring a certain threshold of units be income-restricted for affordability. Timber Yards developers said they plan to apply for the new rebate program for some apartment buildings that didn’t receive a tax break under the old program. If successful, Timber Yards would have to build 76 of its first 507 units with rents set at or below 90% of the area median income.






